Strona tymczasowo niedostępna...

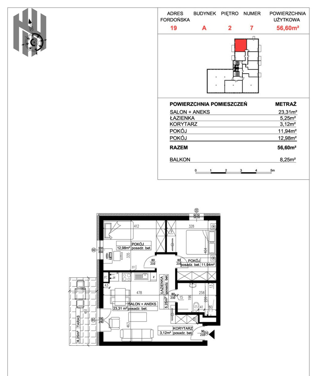
M4 - 56,60m2 Nowe, BEZ PROWIZJI!!! Bartodzieje

lokalizacja: Bydgoszcz, Fordońska

622 600,00 PLN

11 000,00 PLN

Opis nieruchomości

Z przyjemnością prezentujemy Państwu  mieszkanie w nowej, wyjątkowej inwestycji Osiedle Ceramika na bydgoskich Bartodziejach przy ulicy Fordońskiej.

Inwestycja


Osiedle Ceramika od Grupy Moderator na bydgoskich Bartodziejach to doskonałe połączenie stylu oraz funkcjonalności. Minimalistyczny design oraz wygoda to wizytówka tej inwestycji.


Położenie osiedla przy ulicy Fordońskiej 19 gwarantuje komfortowy dostęp do wszystkich miejskich udogodnień. W pobliżu budynku znajdują się: komunikacja publiczna, szkoły, przedszkola, basen, liczne punkty handlowo-usługowe oraz tereny rekreacyjne, w tym Balaton.


Z przyjemnością informujemy, że pierwszy etap osiedla Ceramika jest już gotowy.


Unikalny kształt budynku oraz eleganckie wykończenie elewacji naturalnym kamieniem, 7 kondygnacji, 39 mieszkań, a każde z nich z przestronnym balkonem.


Komfortowe, funkcjonalne wnętrza. Odpowiednie doświetlenie przestrzeni oraz izolacja od hałasu dzięki zastosowaniu trzyszybowych okien. Drzwi antywłamaniowe, balkon w każdym mieszkaniu, winda, parking naziemny oraz podziemna hala garażowa. Wysokość kondygnacji od 270 do 300 cm.


Metraż mieszkań od 30 do prawie 70m2, kawalerki, mieszkania 2 i 3 pokojowe - każdy znajdzie tu dla siebie odpowiednią ofertę.


Części wspólne zaprojektowane zostały przez uznaną architekt wnętrz Agnieszkę Grabowską.


W inwestycji dostępne są również lokale użytkowe.


Wszystkie informacje dotyczące inwestycji, cen oraz mieszkań pochodzą ze strony dewelopera.


Kupujący nie płaci podatku PCC oraz prowizji dla biura!!!

Zapraszam do kontaktu i obejrzenia tej nieruchomości!!!

Weronika Schreiber

KOM: 605 780 582

E-MAIL: biuro@nickhouse.pl

www.nickhouse.pl

NickHouse Biuro Nieruchomości

Aleja Powstańców Wielkopolskich 9A/17

85-090 Bydgoszcz

Niniejsza informacja nie stanowi oferty handlowej w rozumieniu art. 66 Kodeksu Cywilnego.

Kontakt do opiekuna:

NickHouse Weronika Schreiber

Weronika Schreiber
Nieprawidłowy adres E-mail
Mapa

Strona korzysta z plików cookie w celu realizacji usług zgodnie z Polityką prywatności. Możesz określić warunki przechowywania lub dostępu do cookie w Twojej przeglądarce.